ЭСКИЗНЫЙ ПРОЕКТ И КОМПЛЕКТ АГР

Наше бюро ведет разработку эскизных проектов для определения всех объемно-планировочных параметров будущего объекта, включая его архитектурный облик, функциональное назначение и планировочную структуру.
Эскизный проект разрабатывается в соответствии со всеми действующими градостроительными нормами и регламентами.
02
Мы готовы разработать архитектурно-градостроительное решение объекта капитального строительства для прохождения согласования в Министерстве градостроительной деятельности и развития агломераций Нижегородской области.
Краткая пояснительная записка, содержащая характеристики и технико-экономические показатели объекта

СОСТАВ КОМПЛЕКТА ЭСКИЗНОГО ПРОЕКТА:

Схема ситуационного плана
Схема генерального плана объекта
Чертежи фасадов с указанием цветового решения и применяемых отделочных материалов
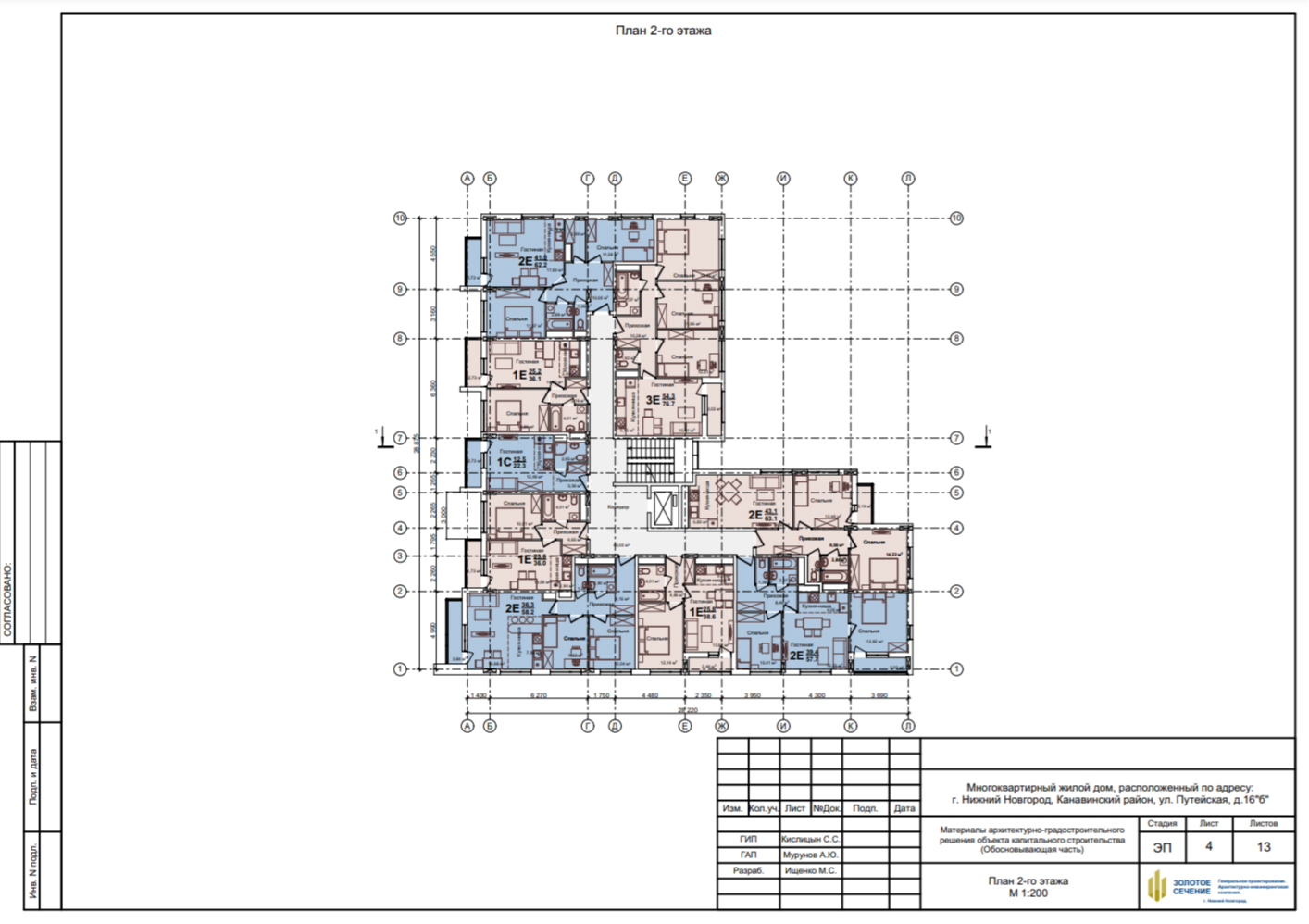
Планы этажей объекта
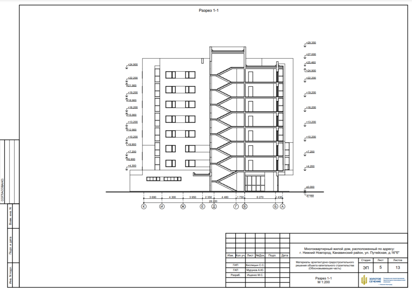
Схемы разрезов с указанием высотных отметок
Перспективные изображения объекта в виде 3D-визуализаций
Схемы разверток по основным улицам со встройками фасадов проектируемого объекта
Врисовки визуализаций проектируемого объекта в фотографии с наиболее ответственных точек его восприятия в городской среде
Содержание архитектурно-градостроительного решения объекта капитального строительства выполняется в соответствии с постановлением Правительства Нижегородской области № 767 от 30 ноября 2015 года
Результатом является стадия проекта которая является концептуальной основой для дальнейшей разработки проектной и рабочей документации, а получение свидетельства о согласовании архитектурно-градостроительного решения является необходимым условием для выдачи разрешения на строительство объекта капитального строительства.
Наше бюро имеет большой и успешный опыт защит проектов на Архитектурном совете при главном архитекторе области.
© AM project 2021 Все права защищены
Нижний Новгород,
ул. Алексеевская, 26, офис 218
Заказать услугу
Оставьте свои контакты, мы свяжемся с вами в ближайшее время.
Отправляя заявку, вы соглашаетесь с политикой конфидециальности